Info centrs Reiņa trasē
Info centrs Reiņa trasē
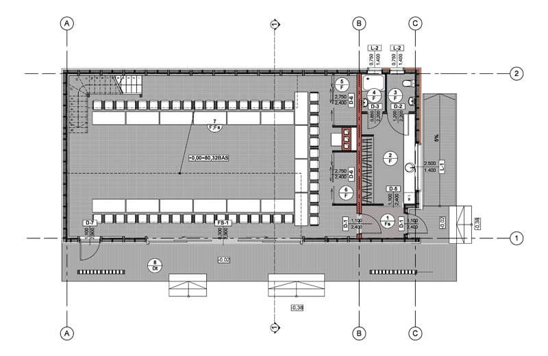
Info centrs – Konferenču zāle / inventāra noma aktīvās atpūtas centrā "Reiņa trase", Krimuldas pagastā.
Ēkā apvienotas vairākas funkcijas, kuras ļoti veiksmīgi var izmantot gan ziemas, gan vasaras sezonā. Vasarā tā kalpo kā informācijas centrs un konferenču zāle, bet ziemas periodā tā var tikt izmantota kā ziemas sporta veidu inventāra noma. Tajā ir arī neliela biroja tipa virtuve ar sanmezglu un dušas telpu.
Objekta platība ~ 250 m²
Apskati arī Reiņa trases kafejnīcu un Reiņa trases viesu namu: www.reinatrase.lv
Sazinies ar mums







